利達消防設備產品
利達設備技術資訊
聯系方式
- 電話:010-57113119
- 電話:13811139776
- 傳真:010-69552656
- 郵箱:506665119@qq.com
- 地址:北京通州區新華北路117
利達火災自動報警控制系統
利達HY5711B總線消防電話主機
文章來自:利達消防設備 發布時間:2016-11-26 16:07

一、HY5711B電話主機介紹
HY5711B總線式消防電話總機,是消防應急通信系統必備的通信產品之一。當發生火災事故時,它可以為人們提供方便、快捷的通信。廣泛應用于建筑的各個領域。

二、HY5711B電話主機功能
★ 系統可容納99個地址編碼,--大傳輸距離可達1500米。
★ 實時自動巡檢,且巡檢速度快,滿載時巡檢周期只需1秒。
★ 總機可以同時與多部分機進行通話,通話/呼叫的分機數可達5部。
★ 具有液晶漢字圖形顯示功能,可以直觀地了解各種功能操作及工作狀態。
★ 可存儲9小時以上的通話錄音,及500條的呼叫通話記錄。能準確記錄每部分機呼叫、通話發生的時間、類型及通話內容。
★ 總機可即時進行短路、斷路的故障報警。
★ 設有一路非編碼消防電話分機的單路通話輸出,在該單路通話線路上可配接30部非編碼消防電話分機或非編碼消防電話插孔,可以允許同時有3部分機通話。
三、HY5711B電話主機主要技術指標

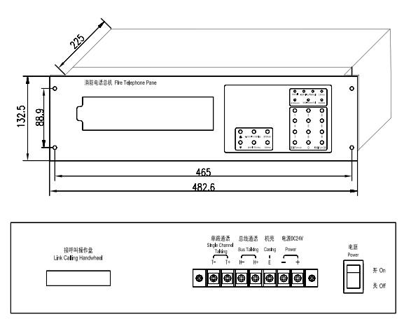
四、外形與結構尺寸及端子圖

五、布線要求
★ 電話線:宜選用截面積不小于1.0mm2阻燃雙色雙絞軟銅線(ZR-RVS2×1.0mm2), 在干擾嚴重的現場應使用截面積不小于1.0mm2屏蔽阻燃銅芯電纜(ZR-RVVP2×1.0mm2)。
★ 電源線:宜選用截面積不小于1.5mm2阻燃雙色雙絞軟銅線(ZR-RVS2×1.5mm 2)或選用截面積不小于1.5mm2的阻燃銅芯電纜(ZR-KVV2×1.5mm 2)。
★ 穿管要求:電話線與電源線應獨立敷設,分別穿入金屬管、阻燃硬質塑料管或封閉式線槽中,嚴禁與其它傳輸系統線路或消防系統中的信號線、電源線、電話線、啟泵回答線、直啟線等穿入同一管中敷設。







